Поиск
Тип объекта
Апартаменты
Коммерческая недвижимость
Дома/виллы
Земельные участки
Все жилые комплексы
АРЕНДА
Населенный пункт
Номер
Стоимость от   €
до   €
Площадь: от  м2
до   м2
Спален от 
до 
Бесплатные консультации по недвижимости

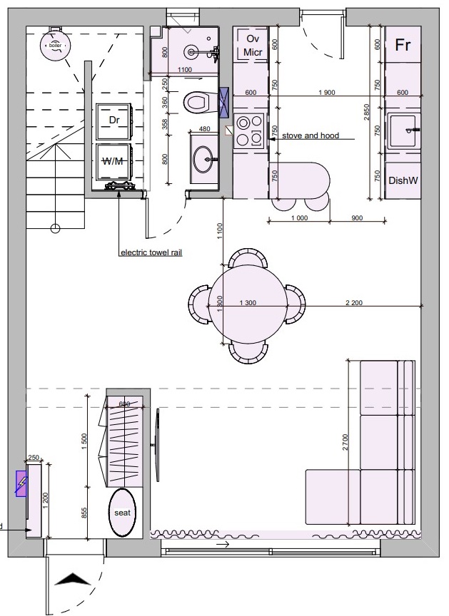
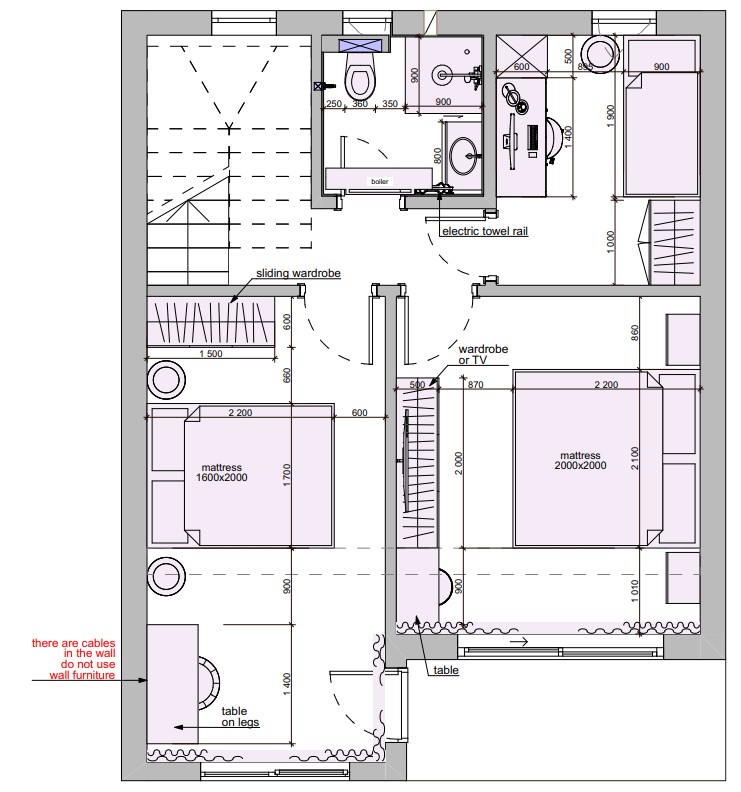
Новый таунхаус с 3 спальнями в коттеджном поселке в Тивате, Черногория

Населенный пункт
Тиват
Номер объекта
22205
Комнаты
4
Спальни
3
Ванные
2
Площадь помещения м2
120 м2
Площадь участка м2
200 м2
Этаж / Этажность
2
Тип
Продажа
Стоимость
338 000 €
Год постройки
2025
Паркинг
Охраняемая территория
Управляющая компания
Расстояние до моря (м)
3000

Специальное предложение: цена 338.000 евро и услуги по оформлению интерьера в подарок!

 

Новый таунхаус с 3 спальнями в закрытом коттеджном поселке в пригороде Тивата, в поселке Кавач. 


Двухэтажный таунхаус построен в стиле модерн площадью 120 м2 и с участком 200 м2. Таунхаус включает в себя гостиную с кухней и столовой зоной, 3 спальни, две ванные комнаты, две террасы и гараж.


Сам комплекс расположен на участке, площадью 23 000 ми состоит из 30 домов. Все дома имеют панорамный вид на Тиватский залив.


Особенности дома:
• Современная железобетонная конструкция
• Экологическая безопасность и качественные материалы
• Теплые энергоэффективные дома
• Противоударные панорамные окна
• Возможность распланировать внутреннее пространство под себя
• Панорамный вид на море.

 

В цену включено:
Внутренняя отделка:
Паркет/керамическая плитка, стены и потолки покрашены в белый цвет
• Полная наружная отделка:
Фасад, кровля, водостоки
Все инженерные системы:
Электрика, канализация, вода, бойлеры в санузлах, кондиционеры в гостиной и хозяйской спальне, теплый пол в санузлах и на кухне
Санузлы:
Плитка, санфаянс
Придомовая территория:
Терраса перед домом, парковка, дорожка к входу в дом
Земельный участок:
подготовка почвы для посадки.


Варианты за дополнительную плату:
• Ландшафтный дизайн
• Бетонирование дополнительных дорожек
• Бассейн.

 

Больше информации о вариантах домов в этом комплексе можно посмотреть здесь.

Планировки