Поиск
Тип объекта
Апартаменты
Коммерческая недвижимость
Дома/виллы
Земельные участки
Все жилые комплексы
АРЕНДА
Населенный пункт
Номер
Стоимость от   €
до   €
Площадь: от  м2
до   м2
Спален от 
до 
Бесплатные консультации по недвижимости

Роскошный меблированный пентхаус в Dukley gardens, Черногория

Населенный пункт
Будва
Номер объекта
22133
Комнаты
4
Спальни
3
Ванные
2
Сан. узлы
1
Площадь помещения м2
420,51 м2
Этаж / Этажность
3/3
Тип
Продажа
Стоимость
3 000 000 €
Бассейн
Паркинг
Охраняемая территория
Управляющая компания
Расстояние до моря (м)
50

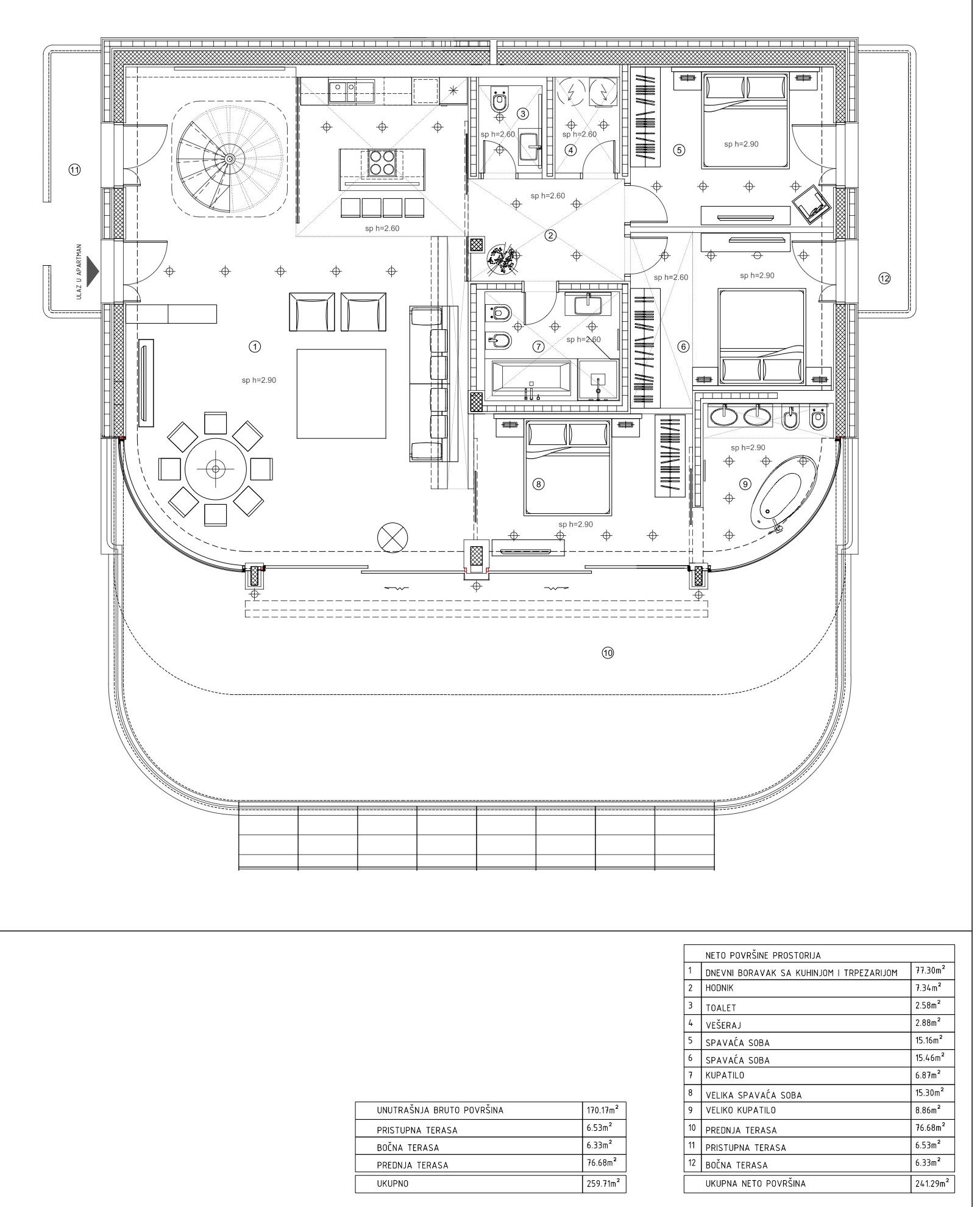
3 спальни- 241,29 m2 + терраса на крыше 180 m2


Роскошный двухуровневый пентхаус в Dukley Gardens с потрясающим видом на море. Неоспоримым преимуществом элитного жилого комплекса является очень удачное расположение: комплекс находится на первой линии полуострова Завала.

Обладатели апартамента будут наслаждаться шикарным видом на море, красивейшей природой и безупречным сервисом. Закрытая территория позволит полностью расслабиться и отдохнуть от городской суеты.

 

Особенной гордостью комплекса являются несколько приватных пляжей, среди которых один большой песчаный пляж, а также пляж Escape beach&restaurant by Nikki beach.



Пентхаус состоит из двух этажей: на первом этаже находится просторная гостиная с кухней и обеденной зоной (77 м2), три спальни, две ванные комнаты, гостевой туалет и подсобное помещение со стиральной машиной, гардеробная. Гостиная выходит на огромную террасу с великолепным видом на Адриатическое море, остров Св.Николы и старый город. Из гостиной лестница ведет на второй этаж, на котором расположена зона для отдыха.

 

Панорамные окна позволяют любоваться красивейшей природой без ограничений. Резиденция имеет встроенную кухню фирмы Poliform, бытовую технику Miele, сантехнику Dornbracht и Villeroy&Boch. В апартаменте пожарная сигнализация, система умный дом, мульти сплит система, стекла «Сан Гард» с эффектом зеркала с внешней стороны, напольное покрытие: в гостиной и в спальне- паркет, в ванной комнате и кухне - плитка, теплый пол. Пентхаус полностью меблирован и готов к комфортному проживанию. Цена включает всю мебель и бытовую технику.

На охраняемой территории комплекса находятся: несколько приватных пляжей, бассейн инфинити, ресторан высокой кухни, пляжный бар, приватная парковка, детский сад и школа, прачечная и химчистка.


Управляющая компания предложит вам сервис высочайшего качества:

-круглосуточное обслуживание комплекса и инфраструктуры
-максимально надежные системы безопасности
-VIP-трансфер в аэропорты
-организация сдачи Ваших апартаментов в аренду
-собственная служба такси
-служба гувернанток
-аренда яхт и автомобилей
-туристическое агентство
 

Планировки