Поиск
Тип объекта
Апартаменты
Коммерческая недвижимость
Дома/виллы
Земельные участки
Все жилые комплексы
АРЕНДА
Населенный пункт
Номер
Стоимость от   €
до   €
Площадь: от  м2
до   м2
Спален от 
до 
Бесплатные консультации по недвижимости

Апартаменты в MOUNTAIN RETREAT BY DUKLEY в центре горнолыжного курорта, Черногория

Населенный пункт
Колашин
Номер объекта
23139
Комнаты
4
Спальни
3
Ванные
3
Сан. узлы
1
Площадь помещения м2
127 м2
Этаж / Этажность
2
Тип
Продажа
Стоимость
700 000 €
Бассейн
Паркинг
Охраняемая территория
Управляющая компания

Роскошные апартаменты- дуплекс лофт в MOUNTAIN RETREAT BY DUKLEY в самом центре популярного горнолыжного курорта Колашин.

 

Именно здесь расположены новые горнолыжные центры «Kolašin 1450» и «Kolašin 1600», соединенные канатной дорогой. В «Kolašin 1450» лыжников и сноубордистов ожидают 7 трасс разной сложности общей протяженностью более 17 000 метров. «Kolašin 1600» пока располагает двумя трассами общей протяженностью 4600 метров, однако в ближайшие годы планируется увеличить количество трасс до 8.

 

Апартаменты находятся в шале ТИП 2 и продаются в чистовой отделке со встроенной сантехникой. В базовый пакет входит элегантный дизайн-проект интерьера.

 

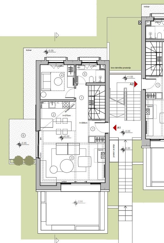
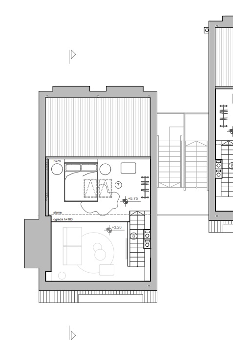
Планировка дуплекса:
  - на 1 этаже находятся две спальные комнаты, 2 ванные комнаты и  подсобное помещение.
  - на втором этаже находится коридор, кухня со столовой зоной, гостиная с выходом на террасу, спальня и ванная комната.

Дизайн-проект шале разработан известным сербским архитектурным бюро в лучших традициях альпийского стиля, преимущественно из природных материалов – дерева и камня. Эти материалы подчеркивают эко-стиль, который лежит в основе дизайна всего комплекса.

 

В комплексе MOUNTAIN RETREAT by DUKLEY предусмотрено строительство десяти шале: четырех шале с двумя апартаментами и шести шале с четырьмя апартаментами. Шале расположены вокруг центрального объекта комплекса – роскошного отеля 5 * – и соединены со всей инфраструктурой комплекса.

Здесь Вас ждет ресторан с открытой террасой с потрясающим видом на горы, различные зоны для спорта и отдыха, а также -Wellness & Spa зона и бассейны, бар, конференц-зал и подземный паркинг.

 

Инвестиции в проект Mountain Retreat by Dukley принесут вам годовой доход в размере 8% от вложений в год в течение первых 3-х лет.

 

Владея недвижимостью в комплексе Mountain Retreat by Dukley, вы получаете доступ ко всей инфраструктуре комплекса и всем услугам, которые предоставляет отель, включая круглосуточный консьерж-сервис и охрану.

Более подробную информацию о комплексе можно узнать по ссылке. 

Планировки
Похожие объекты
Апартаменты с 3 спальнями в новом ЖК в самом центре Будвы
Будва

Спальни
3

Площадь
129 м2

721 420 €
Апартаменты с 3 спальнями в центре Тивата в 500 м от Porto-Montenegro
Тиват

Спальни
3

Площадь
164 м2

699 000 €
Апартаменты с 2 спальнями с панорамным видом на море на 1 линии в Рафаиловичи
Рафаиловичи

Спальни
2

Площадь
107 м2

704 000 €
Апартаменты с 2 спальнями в Boka-Place Porto-Montenegro
Тиват

Спальни
2

Площадь
102 м2

680 000 €