Поиск
Тип объекта
Апартаменты
Коммерческая недвижимость
Дома/виллы
Земельные участки
Все жилые комплексы
АРЕНДА
Населенный пункт
Номер
Стоимость от   €
до   €
Площадь: от  м2
до   м2
Спален от 
до 
Бесплатные консультации по недвижимости

Квартира с 3 спальнями с видом на Боко-Которский залив в современном Ж/К, Черногория

Населенный пункт
Котор
Номер объекта
23148
Комнаты
4
Спальни
3
Ванные
3
Сан. узлы
1
Площадь помещения м2
198 м2
Этаж / Этажность
2/4
Тип
Продажа
Стоимость
648 117 €
Паркинг
Лифт
Охраняемая территория
Управляющая компания
Расстояние до моря (м)
700

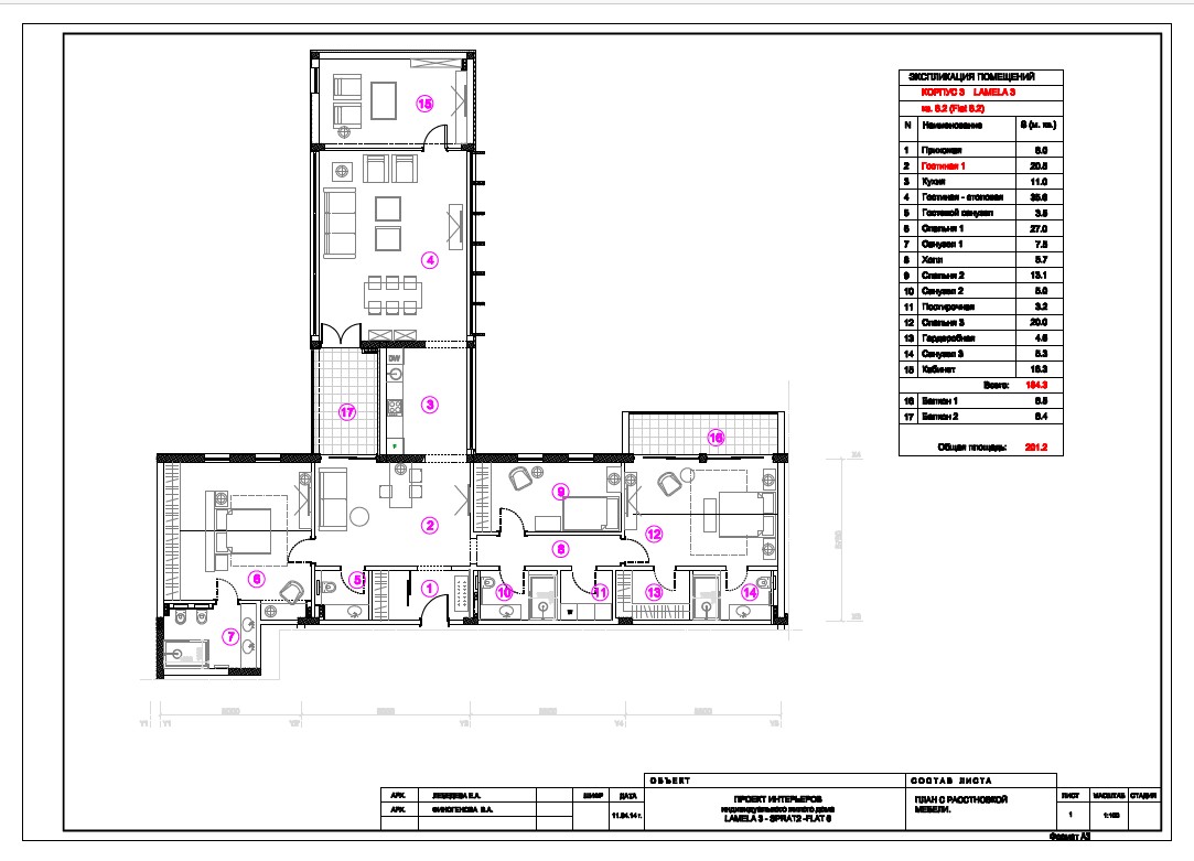
Апартаменты с 3 спальнями, площадью 198 м2, в новом современном жилом комплексе на берегу Которского залива. В апартаментах есть гостиная с кухней, 3 спальни, 3 ванные комнаты, 1 гостевой сан узел, прихожая, гардеробная, постирочная и 3 террасы. Много света, панорамные окна. Апартаменты продаются уже с отделкой, используется паркет из ценных пород дерева, керамогранит Porcelanosa и сантехника Villeroy & Boch и Noken. Квартира полностью меблирована и готова к проживанию.

 

Комплекс состоит из 5 корпусов, имеющих сейсмоустойчивую монолитно каркасную структуру с заполнением кирпичной кладкой. Наружные несущие стены толщиной 300 мм облицованы 7.500 м2 веронского травертина на фасаде. Под травертином установлена 4-х уровневая система гидро и термоизоляции, созданная по технологии «теплая керамика», которая также защищает от шума.


Комплекс находится в живописном пригороде Котора, в 2 км от Старого города, в окружении реликтовых лесов и средиземноморской растительности. Это прекрасное место для проживания и летнего отдыха.

Внимание: данную недвижимость можно оплатить криптовалютой.

 

В комплексе предлагаются на продажу апартаменты с различной планировкой и площадью, более подробная информация здесь.

Планировки
Похожие объекты
Апартаменты с 2 спальнями с панорамным видом на море на 1 линии в Рафаиловичи
Рафаиловичи

Спальни
2

Площадь
107 м2

620 600 €
Пентхаус в новом ЖК с бассейном в центре Тивата
Тиват

Спальни
2

Площадь
216.30 м2

654 522 €
Апартаменты с 3 спальнями с личным бассейном в ЖК
Тиват

Спальни
3

Площадь
140 м2

670 800 €
Роскошный пентхаус с видом на море в Рафаиловичи
Рафаиловичи

Спальни
3

Площадь
220 м2

620 000 €