Поиск
Тип объекта
Апартаменты
Коммерческая недвижимость
Дома/виллы
Земельные участки
Все жилые комплексы
АРЕНДА
Населенный пункт
Номер
Стоимость от   €
до   €
Площадь: от  м2
до   м2
Спален от 
до 
Бесплатные консультации по недвижимости

Апартаменты с 2 спальнями в новом проекте премиум-класса на Будванской ривьере, Черногория

Населенный пункт
Режевичи
Номер объекта
25126
Комнаты
3
Спальни
2
Ванные
1
Сан. узлы
1
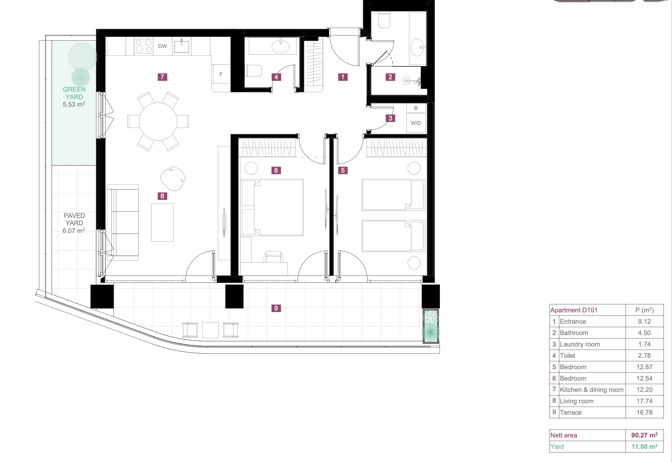
Площадь помещения м2
90,27 м2
Этаж / Этажность
2/3
Тип
Продажа
Стоимость
460 377 €
Бассейн
Паркинг
Лифт
Охраняемая территория
Управляющая компания
Расстояние до моря (м)
400

Роскошные апартаменты с 2 спальнями в новом эксклюзивном проекте с собственной инфраструктурой в одном из самых престижных районов Будванской Ривьеры -поселке Режевичи. Здесь Вы найдете уникальное сочетание природной красоты, уединения и развитой инфраструктуры. Панорамные виды на Адриатическое море, близость к лучшим пляжам и ресторанам делают этот комплекс идеальным выбором для тех, кто ценит комфорт и высокое качество жизни.


Апартаменты находятся на 2 этаже и имеют очень функциональную планировку:

• Гостиную, совмещенную с кухней с выходом на террасу

• Две спальни с выходом на террасу

• Ванную комнату

• Бытовую комнату

• Гостевой туалет

• Террасу с видом на море

• Зеленую террасу.

 

Апартаменты продаются в чистовой отделке и оснащены системой кондиционирования Samsung и сантехникой Hansgrohe и Geberit, встроенными шкафами и кухней.

 

Преимущества проекта.

• Панорамные виды: апартаменты имеют открытые террасы с захватывающими морскими пейзажами.

• Инфраструктура: 4 бассейна, SPA-центр, фитнес-зал, рестораны и лаунж-зоны, гараж, детская зона.

• Безопасность и приватность: закрытая территория, консьерж-сервис 24/7.

• Высокое качество строительства: премиальные материалы, современные технологии, энергосберегающие решения.

• Инвестиционная привлекательность: высокий потенциал роста стоимости недвижимости и стабильный доход от аренды.

 

Международный аэропорт находится всего в 30 минутах езды, что делает локацию удобной для частых путешествий.

 

Близость к ключевым объектам.


Пляжи:


• Drobni Pijesak – 1,2 км.
• Sveti Stefan – 1,8 км.
• Galija Beach Club – 2,9 км.


Города:


• Будва – 11 км.
• Котор – 25 км.
• Тиват – 38 км.


Аэропорты:
• Аэропорт Тиват – 32 км.
• Аэропорт Подгорица – 62 км.
• Аэропорт Дубровник – 81 км.

Более подробная информация о комплексе представлена здесь.
 

Планировки
Похожие объекты
Роскошная квартира с 1 спальней в престижном районе Centrale Luštica Bay
Lustica Bay

Спальни
1

Площадь
69.33 м2

450 000 €
Пентхаус с тремя спальнями и панорамным видом на море в Будве
Будва

Спальни
3

Площадь
118.20 м2

460 980 €
Современная квартира с тремя спальнями у моря в Бока-Которском заливе
Муо

Спальни
3

Площадь
106 м2

445 116 €
Просторная квартира с 3 спальнями в ЖК с бассейном в Дженовичи
Дженовичи

Спальни
3

Площадь
158.3 м2

450 000 €