Поиск
Тип объекта
Апартаменты
Коммерческая недвижимость
Дома/виллы
Земельные участки
Все жилые комплексы
АРЕНДА
Населенный пункт
Номер
Стоимость от   €
до   €
Площадь: от  м2
до   м2
Спален от 
до 
Бесплатные консультации по недвижимости

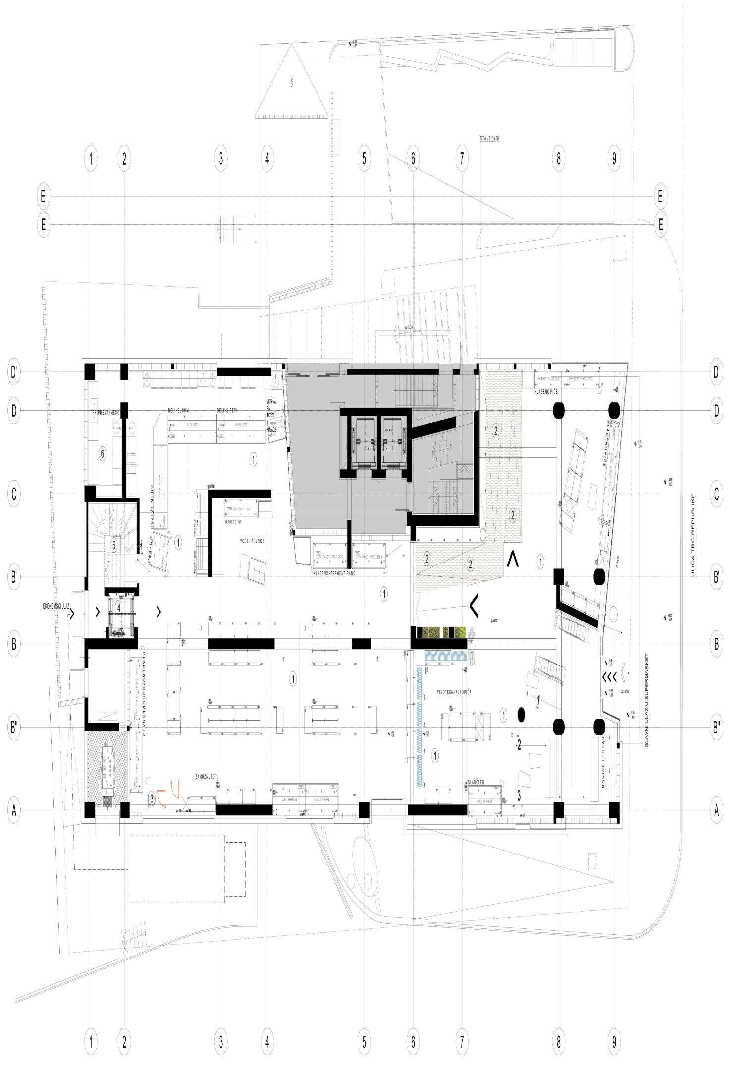
Коммерческое помещение с арендатором — комплекс Dukley Residences, Будва, Черногория

Населенный пункт
Будва
Номер объекта
25401
Площадь помещения м2
735.52 м2
Этаж / Этажность
1/10
Тип
Продажа
Стоимость
5 600 000 €
Паркинг
Управляющая компания
Расстояние до моря (м)
100

Коммерческое помещение с арендатором в Будве — комплекс Dukley Residences

 

Предлагается к продаже коммерческое помещение с долгосрочным арендатором в элитном жилом комплексе Dukley Residences, в самом центре Будвы, рядом со Старым городом и набережной.

 

Основная информация:

- Локация: Будва, Dukley Residences

- Площадь: 735,52 м²

- Цена: €5,600,000

- Доходность: 5,6% годовых

- Договор аренды: на 10 лет с возможностью индексации

- Арендатор: Voli Premium— премиальный сегмент крупнейшей торговой сети Черногории

 

Преимущества объекта:

- Помещение с ремонтом, полностью сдано в аренду

- Расположено на первом этаже жилого комплекса бизнес-класса

- Удобный подъезд и парковка для клиентов

- Район с высоким пешеходным и туристическим трафиком

- Окружение: отели, рестораны, элитный жилой комплекс

- Потенциал роста арендной ставки и стоимости объекта

 

Идеально для:

- Инвесторов, ищущих готовый арендный бизнес

- Покупателей, заинтересованных в надежных активах в туристическом центре Черногории

Планировки