Поиск
Тип объекта
Апартаменты
Коммерческая недвижимость
Дома/виллы
Земельные участки
Все жилые комплексы
АРЕНДА
Населенный пункт
Номер
Стоимость от   €
до   €
Площадь: от  м2
до   м2
Спален от 
до 
Бесплатные консультации по недвижимости

Коммерческое помещение с наружной террасой в The Dreams by Dukley, Черногория

Населенный пункт
Тиват
Номер объекта
25402
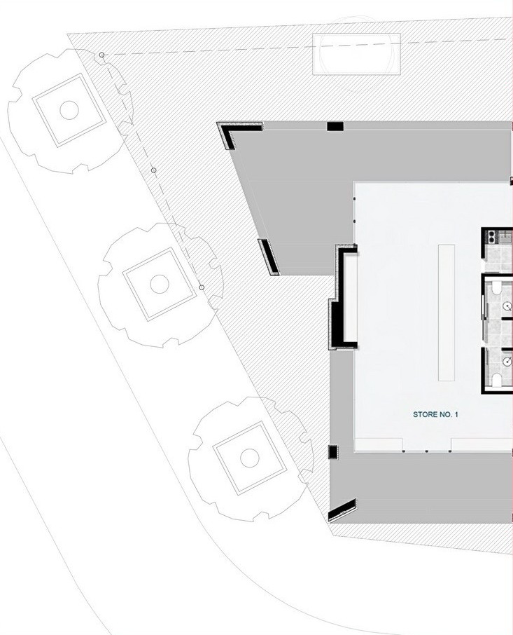
Площадь помещения м2
81,18 м2
Площадь участка м2
143 м2
Этаж / Этажность
0/4
Тип
Продажа
Стоимость
2 955 000 €
Паркинг
Лифт
Охраняемая территория
Управляющая компания
Расстояние до моря (м)
20

Коммерческое помещение с наружной террасой в Porto Montenegro, Dreams by Dukley.

 

Эксклюзивное коммерческое помещение в центре Porto Montenegro -- элитного яхтенного порта и одного из самых престижных курортов Адриатики.
Коммерческое помещение в комплексе Dreams by Dukley -- это первоклассная инвестиционная возможность с высоким потенциалом доходности и прироста капитала.

 

Основная информация:

- Локация: Porto Montenegro, комплекс Dreams by Dukley

- Общая площадь: 294,18 м2

- Внутреннее помещение: 81,18 м2

- Внутренняя терраса: 70,00 м2

- Наружная терраса: 143,00 м2.

 

Преимущества помещения:

- Просторные внутренние и наружные террасы -- идеально для размещения кафе, бутика или сервиса
- Панорамное остекление и высокий пешеходный трафик
- Видимость с главной улицы, удобный доступ для клиентов
- Современная архитектура и качественная отделка
- Единственное новое здание в Porto Montenegro, предлагающее коммерческие площади на продажу.

 

Окружение:

- Марины мирового уровня

- Элитные жилые комплексы

- Бутики, рестораны, отели класса люкс

- Международная школа, бизнес-услуги, культурные мероприятия.

 

Прогноз доходности и роста стоимости:

- ROI -- до 7% в год при аренде по текущей ставке €100/м2
- Окупаемость -- 14 лет
- Прогноз роста арендных ставок
- Согласно утверждённой финансовой модели, ожидается рост стоимости объекта на 40% после завершения строительства.

 

Данное предложение -- идеальное решение для инвесторов и брендов, стремящихся занять место в самом центре элитной локации Черногории.

 

Подробная информация о комплексе — здесь.

Планировки