Поиск
Тип объекта
Апартаменты
Коммерческая недвижимость
Дома/виллы
Земельные участки
Все жилые комплексы
АРЕНДА
Населенный пункт
Номер
Стоимость от   €
до   €
Площадь: от  м2
до   м2
Спален от 
до 
Бесплатные консультации по недвижимости

Видовые апартаменты с 2 спальнями в новом современном доме в Бечичи, Черногория

Населенный пункт
Бечичи
Номер объекта
25145
Комнаты
3
Спальни
2
Ванные
2
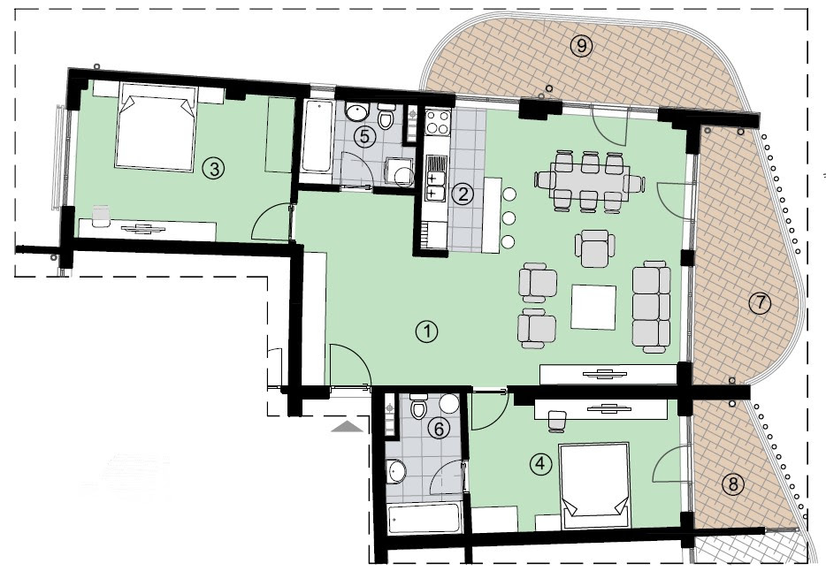
Площадь помещения м2
103 м2
Этаж / Этажность
4/5
Тип
Продажа
Стоимость
412 000 €
Бассейн
Паркинг
Лифт
Охраняемая территория
Управляющая компания
Расстояние до моря (м)
400

Видовые апартаменты с 2 спальнями в новом современном доме в Бечичи.

 

Апартаменты включают в себя просторную гостиную со столовой зоной, кухню, 2 спальни, 2 ванные комнаты и террасы с видом на море.

Апартаменты готовы для проживания. Все квартиры с отделкой высокого качества. Установлены тёплые полы, VRV-система кондиционирования, работающая на охлаждение и обогрев. В доме установлена система нагрева воды за счёт солнечных батарей. Возможно подключение кабельного телевидения и телефона.

В доме имеется лифт, подземный гараж. Приобретая недвижимость от застройщика, покупатель освобождается от уплаты налога. Чистые документы.

 

Ключевые особенности:

• Панорамный вид на море

• Безопасность: видеодомофон

• Выгодное расположение

• Идеальное соотношение цена/качество

• Благоустроенная территория

• 400 м до моря и великолепного песчаного пляжа.

 

Здесь у каждого будет больше времени на отдых, занятия спортом, заботу о личном здоровье и здоровье своей семьи. Большим преимуществом микрорайона является то, что все корпуса построены и введены в эксплуатацию.

 

Инфраструктура комплекса включает такие объекты, как ресепшн, открытый бассейн, детская площадка, ресторан с панорамным видом на море, мини-маркет, подземный многоуровневый паркинг. Рядом открыта кофейня.

 

Бечичи — курортный посёлок с прекрасным пляжем. Пешеходный тоннель соединяет набережную Бечичи с г. Будва, предлагая отличный маршрут для пеших и велосипедных прогулок до самого Старого города Будвы. В другую сторону набережная тянется до самого Каменово, предлагая множество пляжей, ресторанов и кафе, а также красивые виды для всех отдыхающих. В посёлке расположены такие отели, как Splendid (с отличным SPA-центром и рестораном японской кухни) и Mediteran (на его территории есть аквапарк).

 

Больше информации о комплексе — здесь.

Планировки
Похожие объекты
Апартаменты с 2 спальнями в новом ЖК в пригороде Котора
Котор

Спальни
2

Площадь
83 м2

394 796 €
Апартаменты с 1 спальней и видом на море в Melia Private Residences Бечичи
Бечичи

Спальни
1

Площадь
58 м2

388 600 €
Апартаменты с 2 спальнями в комплексе с видом на Тиват
Кавач

Спальни
2

Площадь
119 м2

430 000 €
Квартира с 2 спальнями с видом на Боко-Которский залив в современном Ж/К
Котор

Спальни
2

Площадь
136 м2

388 968 €