Поиск
Тип объекта
Апартаменты
Коммерческая недвижимость
Дома/виллы
Земельные участки
Все жилые комплексы
АРЕНДА
Населенный пункт
Номер
Стоимость от   €
до   €
Площадь: от  м2
до   м2
Спален от 
до 
Бесплатные консультации по недвижимости

Пентхаус в новом жилом доме в Будве, Черногория

Населенный пункт
Будва
Номер объекта
25157
Комнаты
3
Спальни
2
Ванные
2
Площадь помещения м2
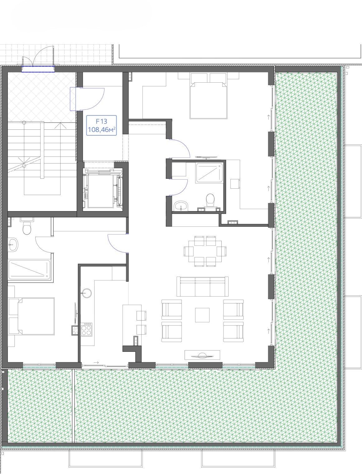
108.46 м2
Этаж / Этажность
5/5
Тип
Продажа
Стоимость
368 764 €
Год постройки
2026
Паркинг
Лифт
Охраняемая территория
Управляющая компания
Расстояние до моря (м)
800

Пентхаус в новом жилом доме в Будве.

Представляем просторный пентхаус, расположенный на верхнем (5-м) этаже нового жилого комплекса в живописном районе Будвы — Бабин До. Это тихая и зелёная часть города с великолепными видами на Адриатическое море и горные ландшафты.

Уникальное террасное расположение комплекса на склоне обеспечивает панорамные виды даже с нижних этажей, а из окон и террасы пентхауса открываются особенно впечатляющие панорамы.

 

Планировка пентхауса:
• Прихожая
• Просторная гостиная, совмещённая с кухней
• Главная спальня с собственной ванной комнатой
• Вторая спальня
• Общая ванная комната
Просторная терраса с видом на море.

 

Преимущества комплекса:
• Тихий район в окружении природы и чистого морского воздуха
• Вид на море и горы из каждой квартиры
• Современная архитектура и продуманная инфраструктура
• Подземный паркинг и гостевые парковочные места
• Лифты в каждом корпусе
• Закрытая охраняемая территория.

 

Особенности объекта:
• Чистовая отделка с использованием качественных материалов
• Эргономичная и функциональная планировка
• Современное инженерное оборудование
• Высокий уровень комфорта и безопасности.

 

Этот пентхаус — отличная возможность приобрести эксклюзивную недвижимость в развивающемся районе Будвы с прекрасным потенциалом для жизни, отдыха или инвестиции.

 

Подробнее о комплексе можно узнать здесь.

Планировки
Похожие объекты
Апартаменты с 1 спальней в новом комплексе с видом на море
Бечичи

Спальни
1

Площадь
69 м2

379 500 €
Роскошный дуплекс- апартаменты в ЖК с бассейном в Бечичи
Бечичи

Спальни
2

Площадь
160 м2

359 000 €
Пентхаус с двумя спальнями и панорамным видом на море в Будве
Будва

Спальни
2

Площадь
115.76 м2

364 966 €
Апартаменты с 1 спальней в 150 м от моря и проекта Portonovi
Кумбор

Спальни
1

Площадь
50.75 м2

398 475 €