Поиск
Тип объекта
Апартаменты
Коммерческая недвижимость
Дома/виллы
Земельные участки
Все жилые комплексы
АРЕНДА
Населенный пункт
Номер
Стоимость от   €
до   €
Площадь: от  м2
до   м2
Спален от 
до 
Бесплатные консультации по недвижимости

Квартира с 2 спальнями в новом ЖК Будвы, Черногория

Населенный пункт
Будва
Номер объекта
25160
Комнаты
3
Спальни
2
Ванные
1
Площадь помещения м2
63.35 м2
Этаж / Этажность
2/3
Тип
Продажа
Стоимость
199 553 €
Год постройки
2026
Паркинг
Лифт
Охраняемая территория
Управляющая компания
Расстояние до моря (м)
2000

Квартира с 2 спальнями в новом ЖК Будвы.

 

Представляем светлую и функциональную квартиру с двумя спальнями, расположенную в современном жилом комплексе в зелёном районе Будвы — Дубовица. Этот район отличается тишиной, чистым воздухом и живописными пейзажами, при этом находится всего в нескольких минутах от ТЦ Mega Mall и вблизи будущей городской больницы, запланированной муниципалитетом.

 

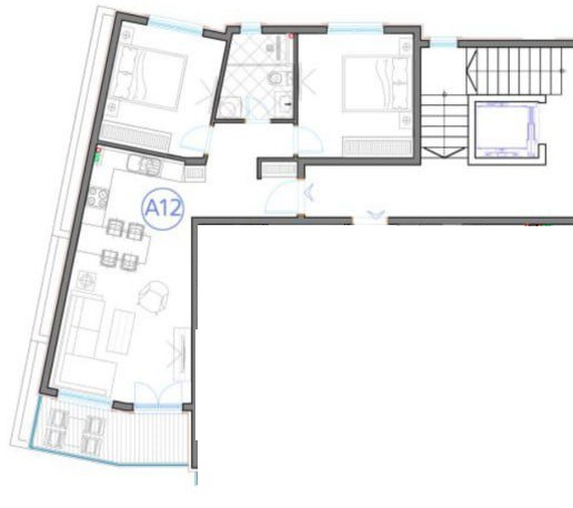
Планировка квартиры:
• Коридор
• Гостиная, совмещённая с кухней
• Две спальни
• Ванная комната
• Терраса.

 

Особенности комплекса:
• Современная архитектура и качественные строительные материалы
• Закрытая и охраняемая территория
• Подземный паркинг, современные лифты
• Озеленённая территория с деревьями и цветниками
• Управляющая компания.

Комплекс строится поэтапно — текущая очередь включает 9 жилых корпусов. Завершение строительства запланировано на июнь 2026 года.

 

Эта квартира — отличная возможность приобрести качественное жильё в развивающемся районе Будвы с удобным доступом ко всей инфраструктуре города и побережью.

 

Подробнее о комплексе можно узнать здесь. 

Планировки
Похожие объекты
Трехкомнатная квартира в новом доме в Дженовичи, Херцег-Нови
Дженовичи

Спальни
2

Площадь
69 м2

205 000 €
Квартира с 1 спальней в новом ЖК с бассейном в Бечичи
Бечичи

Спальни
1

Площадь
59 м2

225 306 €
Квартира с одной спальней и видом на море в Будве
Будва

Спальни
1

Площадь
50 м2

225 000 €
Апартаменты с одной спальней в Бечичи
Бечичи

Спальни
1

Площадь
57,46 м2

183 872 €