Поиск
Тип объекта
Апартаменты
Коммерческая недвижимость
Дома/виллы
Земельные участки
Все жилые комплексы
АРЕНДА
Населенный пункт
Номер
Стоимость от   €
до   €
Площадь: от  м2
до   м2
Спален от 
до 
Бесплатные консультации по недвижимости

Апартаменты с одной спальней в Будве, Черногория

Населенный пункт
Будва
Номер объекта
25185
Комнаты
2
Спальни
1
Ванные
1
Площадь помещения м2
46.06 м2
Этаж / Этажность
3/6
Тип
Продажа
Стоимость
147 392 €
Год постройки
2027
Бассейн
Паркинг
Лифт
Охраняемая территория
Управляющая компания
Расстояние до моря (м)
1500

Апартаменты с одной спальней в Будве.

Современные апартаменты с одной спальней, расположенные на 3-м этаже престижного жилого комплекса в районе Дубовица, Будва. Комплекс находится рядом с центром города и популярными пляжами Словенска, Могрен, Бечичи и районом Розино.

 

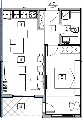
Планировка:
• Просторная гостиная с кухней
• Уютная спальня
• Современный санузел
• Терраса с видом на город и море.

 

О комплексе:
• 5 современных жилых зданий, по 34 квартиры в каждом
• Просторные террасы и панорамные виды
• Строительство по европейским стандартам.

 

Инфраструктура:
• Открытый бассейн
• Фитнес- и йога-зона
• SPA-центр
• Подземная парковка
• Охраняемая территория с ландшафтным дизайном.

 

Срок сдачи: июнь 2027 года.

 

Условия оплаты:
• 50% — первый взнос
• 25% — после завершения конструктивных работ
• 10% — после фасадных работ
• 10% — после укладки плитки
• 5% — при передаче ключей.

 

Больше информации о комплексе можно узнать здесь.

Планировки
Похожие объекты
Апартаменты с 1 спальней в новом ЖК с бассейном и видом на море в Тивате
Тиват

Спальни
1

Площадь
48,9 м2

170 000 €
Квартира с видом на море c 1 спальней в ЖК c бассейном в Бечичи
Бечичи

Спальни
1

Площадь
45 м2

135 000 €
Апартаменты с 1 спальней в новом ЖК в Тивате
Тиват

Спальни
1

Площадь
44,97 м2

153 700 €
Квартира с 2 спальнями с панорамным видом на море в пригороде Будвы
Сеоце

Спальни
2

Площадь
75 м2

149 000 €