Поиск
Тип объекта
Апартаменты
Коммерческая недвижимость
Дома/виллы
Земельные участки
Все жилые комплексы
АРЕНДА
Населенный пункт
Номер
Стоимость от   €
до   €
Площадь: от  м2
до   м2
Спален от 
до 
Бесплатные консультации по недвижимости

Апартаменты с двумя спальнями в Будве, Черногория

Населенный пункт
Будва
Номер объекта
25186
Комнаты
3
Спальни
2
Ванные
1
Сан. узлы
1
Площадь помещения м2
93 м2
Этаж / Этажность
5/6
Тип
Продажа
Стоимость
297 600 €
Год постройки
2027
Бассейн
Паркинг
Лифт
Охраняемая территория
Управляющая компания
Расстояние до моря (м)
1500

Апартаменты с двумя спальнями в Будве.

Современные апартаменты с двумя спальнями, расположенные на 5-м этаже престижного жилого комплекса в районе Дубовица, Будва. Комплекс находится рядом с центром города и популярными пляжами Словенска, Могрен, Бечичи и районом Розино.

 

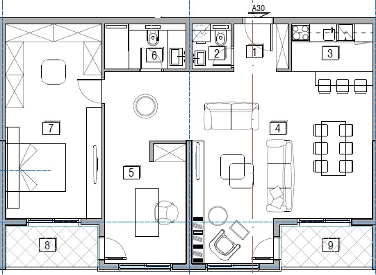
Планировка:
• Просторная гостиная с кухней
• Две уютные спальни
• Современная ванная комната
• Гостевой санузел
• Терраса с панорамным видом на город и море.

 

О комплексе:
• 5 современных жилых зданий, по 34 квартиры в каждом
• Просторные террасы и панорамные виды
• Строительство по европейским стандартам.

 

Инфраструктура:
• Открытый бассейн
• Фитнес- и йога-зона
• SPA-центр
• Подземная парковка
• Охраняемая территория с ландшафтным дизайном.

 

Срок сдачи: июнь 2027 года.

 

Условия оплаты:
• 50% — первый взнос
• 25% — после завершения конструктивных работ
• 10% — после фасадных работ
• 10% — после укладки плитки
• 5% — при передаче ключей.

 

Больше информации о комплексе можно узнать здесь.

Планировки
Похожие объекты
Апартаменты с двориком в новом ЖК с бассейном в поселке Кумбор
Кумбор

Спальни
2

Площадь
76 м2

303 450 €
Квартира с 2 спальнями и видом на море в ЖК c бассейном в Бечичи
Бечичи

Спальни
2

Площадь
106 м2

285 000 €
Квартира с 2 спальнями в новом комплексе с бассейном и SPA в Бечичи
Бечичи

Спальни
2

Площадь
74 м2

310 800 €
Квартира с 3 спальнями в новом доме в Бечичи в 200 м от моря
Бечичи

Спальни
3

Площадь
85 м2

297 500 €