Поиск
Тип объекта
Апартаменты
Коммерческая недвижимость
Дома/виллы
Земельные участки
Все жилые комплексы
АРЕНДА
Населенный пункт
Номер
Стоимость от   €
до   €
Площадь: от  м2
до   м2
Спален от 
до 
Бесплатные консультации по недвижимости

Апартаменты с одной спальней в новом доме в Рафаиловичи, Черногория

Населенный пункт
Рафаиловичи
Номер объекта
26110
Комнаты
2
Спальни
1
Ванные
1
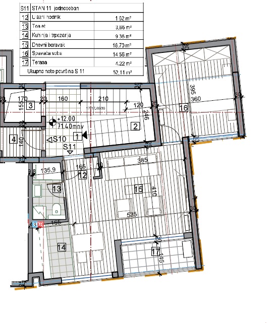
Площадь помещения м2
52.11 м2
Этаж / Этажность
5/6
Тип
Продажа
Стоимость
166 752 €
Год постройки
2026
Паркинг
Лифт
Управляющая компания
Расстояние до моря (м)
500

Апартаменты с одной спальней в новом доме в Рафаиловичи.

 

Апартаменты в новом доме с видом на море и удобным подъездом, расположенные в Рафаиловичи, в 500 метрах от пляжа. Дом сочетает современный дизайн, передовые строительные технологии и максимальный комфорт для жизни и отдыха.

Апартаменты находятся на 5 этаже и состоят из коридора, ванной комнаты, кухни, совмещённой с гостиной, из которой есть выход на террасу, а также спальной комнаты.

 

Ключевые особенности:
• Дизайн и высокое качество строительства
• Потрясающий вид на море
• Подземная парковка
• Лифт.

 

Это предложение — идеальное сочетание комфорта, уюта и безопасности, созданное для тех, кто ценит качество жизни и хочет наслаждаться красотой Черногории каждый день.

 

Более подробная информация о доме доступна по ссылке.

Планировки
Похожие объекты
Апартаменты с 1 спальней в новом доме в Тивате
Тиват

Спальни
1

Площадь
42,56 м2

140 500 €
Квартира с 1 спальней в новом доме в Бечичи в 200 м от моря
Бечичи

Спальни
1

Площадь
52 м2

182 000 €
Апартаменты с 1 спальней в новом ЖК с бассейном и видом на море в Тивате
Тиват

Спальни
1

Площадь
48,9 м2

170 000 €
Апартаменты с 1 спальней в новом ЖК с бассейном в поселке Кумбор
Кумбор

Спальни
1

Площадь
43,18 м2

170 021 €